首页 > 家居 > 正文

走进上海夫妇102㎡新家,巧妙的压缩空间后,看起来超大

2020-09-10 14:01:13 来源: 阅读:-
评论(0 收藏(0

在新房设计中,与其说压缩空间,倒不如是合理的利用空间。而如何来利用,除了要结合原户型结构,以及自己的居住需求,还得在有限的空间中,将新房所拥有的优势给尽量表现出来。当然,关于这点很多人也都明白,可如何来实现,那么就得在前期的方案设计上,花大量的时间来琢磨了。

比如本期给大家带来的这套案例,不仅在空间有限的情况下,实现了大空间的视觉效果;还在以灰调为主色的情况下,表现出了干净通透感,完全没出现想象中的那种压抑感,很值得大家来借鉴。

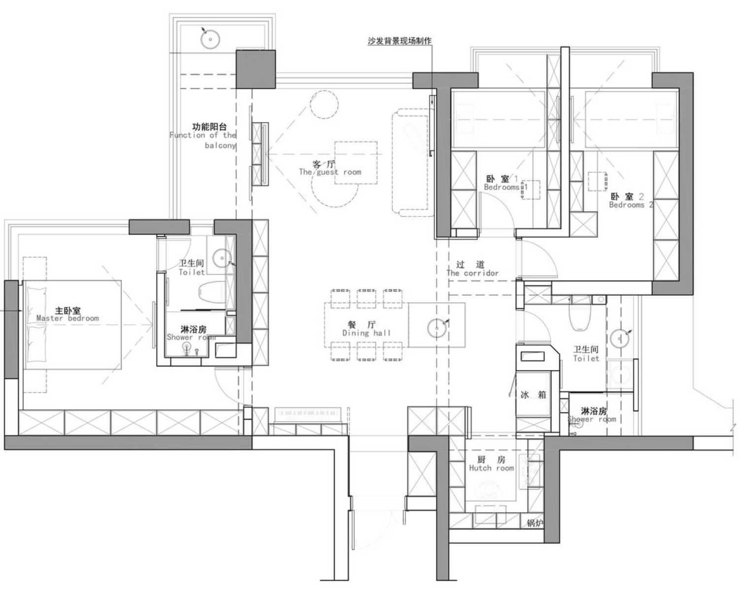
原始户型图

走进上海夫妇102㎡新家,巧妙的压缩空间后,看起来超大

新房位于上海,屋主为一对夫妇带两个女儿,虽说面积只有102㎡,但户型却非常不错。比如三个房间都是向南朝向,进门有独立的玄关,客餐厅为一体结构等等。

不过即便如此,在方案设计上,屋主还是做了空间压缩处理,也就是这个处理,让原本只有102㎡的新房,空间看起来显得更大了。

平面方案图

走进上海夫妇102㎡新家,巧妙的压缩空间后,看起来超大

在整个方案设计上,基本上都是围绕家里的两个卫生间来处理的。

1、考虑到卫生间与厨房外面有一个设备平台可利用,所以直接将卫生间移到设备平台处,从而释放出原卫生间部分的空间,来增加整个客餐厅的面积。

2、在卫生间拆掉的情况下,压缩部分厨房的空间,使空间看起来更加的工整。

3、将主卧卫生间的门移到侧面,避免和卧室门相交,以保证房间的动线更加舒适。

进门玄关

走进上海夫妇102㎡新家,巧妙的压缩空间后,看起来超大


推荐阅读:中国黄山网